Opis
Drzwi do schronów przeciwlotniczych przeciwwybuchowe typy DC3.1 AB II klasy EXR2
Drzwi wyceniamy każdorazowo wraz z montażem, czekamy na zapytania!
Produkowane są w dowolnych wymiarach zamówieniowych. Skrzydła drzwi składane są z dwóch arkuszy blachy stalowej ocynkowanej o grubości 2,0 mm, ukształtowanych metodą gięcia na zimno tworzących płaszcze skrzydła drzwiowego. Dodatkowo skrzydła drzwi po stronie zawiasowej pokryte są blachą stożkową rozpraszającą falę uderzeniową wybuchu. Konstrukcja jest wzmocniona wewnątrz odpowiednimi profilami stalowymi, a przestrzeń pomiędzy profilami wypełniona jest wełną mineralną. Skrzydła na wszystkich czterech krawędziach posiadają przylgi z uszczelką. Skrzydła zawieszone są na czterech zawiasach ø22 z łożyskami, na ościeżnicy wykonanej z zimnogiętego profilu ceowego lub kątowego z felcem poduszczelkowym. Ościeżnice wyposażone są w próg o wysokości 20 mm. Zabezpieczenie strony zawiasowej stanowią trzy blokady przeciwwyważeniowe. Drzwi DC3.1 AB II mogą być stosowane jako drzwi zewnętrzne, wewnętrzne, otwierane na zewnątrz i do środka pomieszczenia. Drzwi zapewniają odporność na wybuch wyłącznie od strony zawiasowej.
Wykończenia powierzchni:
- lakierowana proszkowo na kolor z palety RAL
- obłożona lakierowaną płytą MDF
- obłożona płytą sklejkową fornirowaną naturalną okleiną dębową
- obłożona drewnem dębowym
Brak możliwości wykonania drzwi DC3.1 AB II w wersji przeszklonej.
CHARAKTERYSTYKA TECHNICZNA
- ościeżnica ceowa lub kątowa z blachy stalowej ocynkowanej o grubości 3 mm z uszczelką EPDM na trzech krawędziach
- skrzydło płaszczowe z blachy stalowej ocynkowanej o grubości 2 mm z dodatkowym pokryciem blachą tłoczoną w stożki, o grubości 103 mm z uszczelką EPDM na czterech krawędziach
- wypełnienie wełną mineralną o gęstości 60 kg/m
- łożyskowane zawiasy
- blokady przeciwwyważeniowe
- zamek centralny rozporowy w klasie 7
- zamek dodatkowy (opcja)
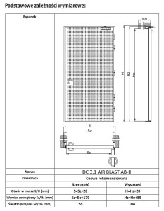
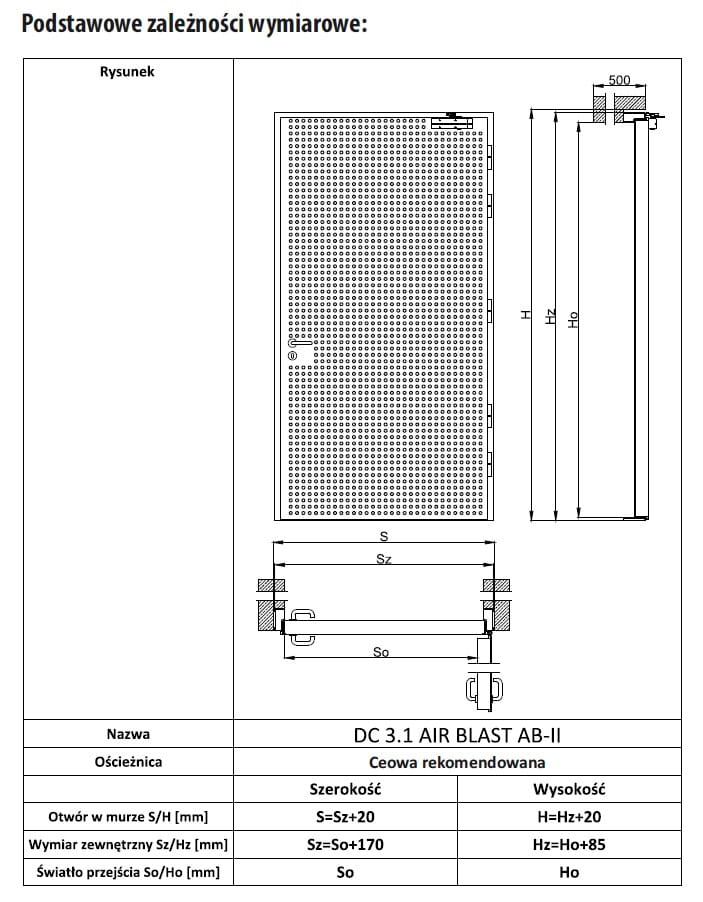
Maksymalne wymiary w świetle ościeżnicy: h = 1254 x s = 3000 mm. Orientacyjna waga: 95 kg/m2
ZASTOSOWANIE:
- obiekty militarne, rządowe, dyplomatyczne, policyjne, i wszystkie inne narażona na zagrożenie ataku materiałami wybuchowymi,
- laboratoria, w których prowadzone są badania stwarzające zagrożenie wybuchem,
- obiekty przemysłowe, w szczególności petrochemiczne, energetyczne - energetyka jądrowa i inne w których występuje ryzyko wybuchu,
- strefy zagrożenia wybuchem z ryzykiem wystąpienia atmosfery wybuchowej (gazy, pyły).
| Cecha | Klasa |
|---|---|
| odporność na wybuch | klasa EXR2 wg PN-EN 13123-2:2004 |
| odporność na wybuch | 3kg TNT w odległości 3 m |
| odporność na przyrost ciśnienia | Pso 2,30bar / 230 kPa |
| odporność na impuls | iso 1,65 bar/ms / 165k Pa/ms |
| odporność na obciążenie wiatrem | klasa 5C wg PN-EN 12210: 2001 |
| wodoszczelność | klasa 3A wg PN-EN 12208: 2001 |
| przepuszczalność powietrza | klasa 4 wg PN-EN12207: 2001 |
| wytrzymałość mechaniczna | klasa 4 wg PN-EN1192: 2001 |
| odporność na włamanie | klasa C wg PN-B-92270:1990 |
| odporność na włamanie | klasa RC4 wg PN-EN 1627:2012 |
| substancje niebezpieczne | atest PZH wg PN-EN14351-1+A1: 2010 |
